
面 积 | 188㎡
平面分析
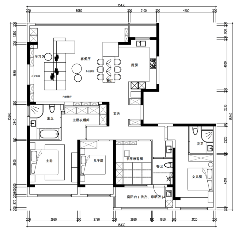
● 平面方案 Ⅰ ●

入户预留的玄关区增加定制鞋帽柜,一边可以作为换鞋区,增加换鞋凳,另一侧主要用作收纳。客餐厨空间朝北,所以采光和通风比较重要,客餐厅作开放式,呈横厅设计,以沙发作为软隔断,将两个空间区分开,厨房L型设计满足基础的烹饪需求,电器也足够收纳。
因为这个户型南北都有阳台所以南阳台主要用作洗衣晾晒,北阳台作为休闲区,种种鲜花绿植等。四个房间均朝南,保留其中三间卧室均带有飘窗,居住起来比较舒适,两间作卧室套房,一间为主卧,另一间可以作为长辈房,使用起来更加方便;儿子房靠近书房,卧室比较小,只做基础的收纳和满足睡眠需求,学习主要在书房完成,提高空间的使用频率。
● 平面方案 Ⅱ ●

在第二个方案中,设计师将客餐厅与北阳台打通,扩大可利用的空间,厨房也作开放式,增加了一些功能区。打破传统的沙发形式,选择组合式沙发结合学习区,利用悬挂式投影将客餐厅进行区分,厨房全开放式延伸出岛台式餐桌,既增加了可操作台面,也提高了厨房的储物收纳性。
***稿中的书房作榻榻米组合式,既可以当做临时客房,也可以解决二胎家庭的学习问题。
软装意向分析
● 玄关 ●

进门看见的是客厅,可以两边靠墙做顶天立地式收纳柜,打造一个兼具美观与实用的入户空间,既能提升家的颜值,又能为家打造一个功能区。如果不考虑储物,就可以用玻璃作为隔断。玻璃隔断不会影响室内采光,还有增加室内通透感的作用。
● 客厅 ●


餐客厨一体,让空间效率变得更高,功能能够重叠使用,如餐桌贴近厨房,餐桌可以作为备餐区,餐厅与客厅相融,餐椅也是客厅的“沙发”。
如果家人都爱看书,或者有小孩的家庭想要让孩子养成读书的习惯,那么阅读式的客厅布局***适合。可以把电视背景墙打造成可以收纳的书柜,全家不再是一味的守在电视旁,而是一起徜徉书海。
● 餐厅 ●

餐桌与厨房的橱柜操作台平行并列排布,一般适用于单排一字型厨房,空间结构比较规整,形式感强。
烹饪完毕直接上桌,减少厨房到餐厅行动的路线,既满足路线短,节省时间,以及行动流畅方便的动线设计要求,极大的提高的厨房烹饪出餐的效率。
● 主卧 ●

主卧室带有卫生间,可有效避免早晚抢卫生间高峰,家人间幸福指数也满满。以L型衣帽间作为过渡空间,有效利用入室空间增加收纳,把有限的卧室空间,划分动静分区,不仅美观大方,功能使用更大,把床尾处的空间作为梳妆区来使用。
主卫四分离,拥有了泡澡的快乐,以***短的家居动线实现舒适便捷。
● 儿童房 ●

儿童房的设计,除了要营造一种天真烂漫的氛围外,还需要有休憩功能、学习功能和收纳功能;采用一体化的定制形式,将衣柜、书柜、书桌做一体化定制,***大化利用空间的同时,满足多重需求。
● 次卧 ●


次卧相比主卧要小很多,利用床头墙面,打造收纳+书柜一体化定制床头柜。打造沉稳、淡雅、温暖的感觉, 忌过冷、艳、暗、亮。
● 书房 ●

可以采用榻榻米的形式,集书桌柜于一体,兼容睡眠区、娱乐学习区、衣物收纳等功能。颜值和实用兼具,拥有办公的功能,另外当客人来访时,又能变成临时客卧,一举多用,起到1+1>2的***功效。
或者只作为独立书房时需要规划足够的收纳空间,靠墙定制书桌+书柜,可容纳多人使用,便于工作学习。开放式与封闭式并存的书柜,既可以摆放书籍,也可以摆放装饰品。
● 阳台 ●


南阳台采光充足,柜子尽量到顶,有助于***大化存储空间,洗衣机和烘干机叠放,旁边设计一个水池,下面是收纳柜。提供洗衣晾晒功能,功能齐全,简单又实用。
北阳台作休闲使用。绿植、休闲椅、小茶几构建了一个小而精致的休闲角,是家中难得的放松空间。如果有好友登门也可来这里小坐,两人喝喝茶、聊聊天,非常悠闲。