这次分享的是 海和云庭140m² 软装设计分析,
内容主要包括户型分析、平面布局分析和空间功能解析。
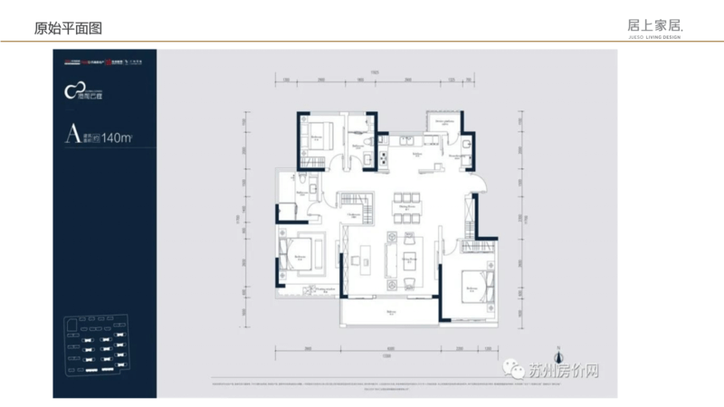
项目概况

户型为三室两厅两卫(不包含洗衣房)
精装房设计考虑统一的交付性,硬装存在固定性储物相对不完善。
在空间布局上设计较为单调,缺乏个性化需求标准。
并且没有实现动静分离,将空间完整的划分开。
门厅&过道 分析:
优点:
1、门厅预留了鞋柜位置,可以根据实际规划玄关;
2、门厅空间、视线很开阔。
3、预留了洗衣房位置。
缺点:
1、过道较长,利用率不高;
2、没有独立的门厅位置。

客餐厅&阳台分析:
优点:
1、南北通透、视野开阔、采光好;
2、空间比例适中,居住比较舒适并且通风好;
3、双阳台。
缺点:
1、餐厅空间需要借助长走廊;
2、客餐厅链接有转角,室内尖角过多;
3、缺少储物空间。
卧室分析:
优点:
卧室空间平整,满足功能使用,并且采光通风效果好。
缺点:
北卧室采光稍差,面积稍小。
空间功能分析

***种方案:
首先是 门厅,交付时预留了位置,选择在进门左侧放置定制鞋柜,满足日常的出门拿物换鞋需求;
客厅交付时只有简单的墙纸和吊顶,因为客厅开间稍大一些,在满足一家多口人需求的前提下,选择多人位的L型沙发;并做开放式的书房,与客厅空间功能分开,但是又形成回游型动线,做整墙的书架,增加收纳。
餐厅借助门厅长走廊,放置六人位的圆桌,原始布局餐厅位置稍小,所以没有收纳的区域,利用西墙增加收纳设置餐边柜,作为厨房区域收纳的补充或者当做酒柜也是极好的。

第二种方案:
门厅 相比于***种方案,与其他空间做了隔断,可以用收纳柜、栅栏、铁艺镂空或者屏风等方法做隔断。想客厅通透又不想进门就看到,运用一道隔断来“遮蔽”视线,化解“一览无遗”的尴尬,避免对隐私的烦恼。
客厅 位置沙发背部作休闲娱乐区,可以放置主人喜爱的钢琴或者其他的爱好物件、乐器等,将采光通风都不太好的 北卧室 改造成多功能房间,可以临时当做客房,也可以当做书房使用。

对于整体空间,一定要有主次之分(如上图),整个空间一定以客厅、门厅、餐厅,同时包括主卧作为整体空间的 主要空间,当然使用频率相对更高,家具更强调品质和美观,同时具备舒适性,便于打理。
次要空间 主要有稍小的南次卧室、衣帽间和北面的房间,这方面更注重性价比与装饰性。

可以看出,以常规布局统筹出来家具、整体定制柜、窗帘、地毯、灯具等需要的数量;
收纳方面,也有做统筹储物量,相对较多,每个家庭的整洁度主要取决于家里的收纳做的是否合理。居家生活,建议收纳越多越好,结合每家每户的实际情况,会给到一些合理性的建议。
软装风格定位



在当下的时代,我们面对生活生活节奏较快,面对生活和工作有着双重的压力。于是,简约的生活方式成为一种新的时尚追求,它用***少的装饰和物品,更多的关注人和生活,这也是为什么大家越来愿意选择现代简约风格 作为居家的设计风格。
现代风格的更多的是关注人本身的需求,避免不必要的装饰。但并不意味着对生活品质的要求低,反而追求的是更加精致,自然,舒适的生活方式。
在这个软装设计定位中,设计师以柔和的暖灰色为主色调,黑白原木系与木饰贯穿于整个家居空间,以享受简单的设计带来的纯净与雅致,力求空间功能的***大化,形成一个有机的、自然主义的现代化生活空间。
软装设计意向图
· 玄关 ·
因为本身房子交付是没有单独的门厅位置,客餐厅空间也是共享的,所以在玄关处加以隔断设计,可以让整体的空间感都有所加强。
考虑功能性。以柜子做隔断,既划分空间,又兼顾收纳整理,漂亮又实用。
· 客厅 ·



当没有单独书房的前提下,一般会选择做 客厅+书房一体化 的设计,用书桌当做隔断,让整个房间看上去更和谐。不仅提高了客厅的档次感,还能一屋两用。
或者根据主人的兴趣爱好,将休闲娱乐区与客厅一体化,这样动静分离,彼此陪伴也很温馨。
可以做嵌入式的收纳柜设计,不仅满足日常书籍的摆放,开放格和闭合式相结合,既增加了收纳也能摆放一些装饰物。

客厅窗帘的颜色***好从沙发花纹中选取,浅色调、透光性强的薄窗帘布料为好,能够营造出一种庄重简洁、大方明亮的视觉效果。
· 餐厅 ·



餐厅 延续现代简约风格,餐桌可以选择不同的材质来装饰餐厅,不同的材质其实就会体现出不一样的氛围,比如大理石更偏刚硬,木质更偏柔软,玻璃更偏通透,包括像岩板更偏硬朗,可以根据性格的喜好想要的空间感觉。
餐桌旁放置餐边柜,可以考虑定制美观的餐边柜,日常运用的家用小电器,可以在餐边柜上更好的操作,同时,餐边柜中可以收纳一些东西,比如水杯、茶叶等,甚至是家中日常使用的药物也可以进行收纳。
· 主卧 ·



主卧 交付时带有飘窗,可以将飘窗位置利用起来,改造成一个mini的学习区,背景墙按照风格和喜好做硬包,在床尾设立斗柜和化妆台,满足女主人的日常需求,因为主卧带衣帽间,所以收纳已经足够了,主要以装饰和体验感为主。
· 衣帽间 ·


房子交付时有 衣帽间,没有没有衣柜只有门板。所以在改造时需要合理的去规划,同时结合每个区域的实际功能,可以做薄的柜子,使用起来也会更方便,这样需要和设计师更深入的沟通,如何去设计那样的区域。
整个空间的衣帽收纳,首先应该结合业主的工作生活习惯,同时根据身高做个性化的定制设计,区分开长短衣物、包包、帽子、皮带等区域日常收纳的习惯。
· 南次卧 ·


长辈房 以简约大气为主,随着年纪的增长,生活需求是方便安全为主,以简单的装饰画为背景或者做简单软包,整个空间显得温馨一些,放置床头柜灯方便起夜,按需要增加收纳即可。
· 北卧室 ·


儿童房 主要以学习空间为主,用软装饰品来区分性别,如果业主孩子年纪较小也可以将这个房间当做亲子互动区,小孩子都比较爱创造,那么可以设计一面黑板墙或者积木墙用来“乱涂乱画”。

北卧室一般空间稍小,可以做榻榻米并设置书桌柜,实现很多功能,比如桌子可以替代写字台、电脑桌、化妆台、床头柜等等,柜子可以是书柜、衣柜、置物柜等等,各种功能组合都可以,能适应各种需求。并且榻榻米既可以满足居住需求也可以得到更多的收纳空间。
· 洗衣间·

洗衣间 需要实现的功能是机洗、手洗、收纳和晾晒,不同的人对洗衣房有不同的要求,需要把空间合理的设计。
· 阳台 ·

因为有单独的洗衣房,阳台不再只是一个“晾晒区域”,所以 阳台 可做休闲区来使用,可以放置饮茶的餐桌餐椅,也可以种植绿植花花草草,营造轻松的氛围。
在阳台的设计上,大家而是当成“小客厅”、“小书房”、“小花园”等定位来装修。
整体预算和施工进度

软装设计搭配包括空间布局、饰品类型、色彩搭配等多方面,软装风格彰显着主人的性格特点或是精神追求,软装搭配是它表现方式之一。
设计,是为了营造出适合居住者的生活方式,软装就是为了让居住者使用感受更加舒适。
上图是大概软装设计所包括的类目和价值占比,现在精装房越来越多,而软装设计师就是是从整体上综合策划装饰装修设计方案,体现出居住者的个性品位。