130㎡四室两厅两卫北京软装设计方案解析_旺财28北京软装设计公司
茶馆茶楼软装
美容院软装
咖啡厅软装
店面软装设计
办公室软装
酒吧软装设计
民宿软装设计
会所软装设计
别墅软装设计
住宅软装设计
样板间软装
售楼处软装
餐饮设计

130㎡四室两厅两卫北京软装设计方案解析

  • 发布时间:2023-10-24 17:05:29
  • 浏览次数:

  

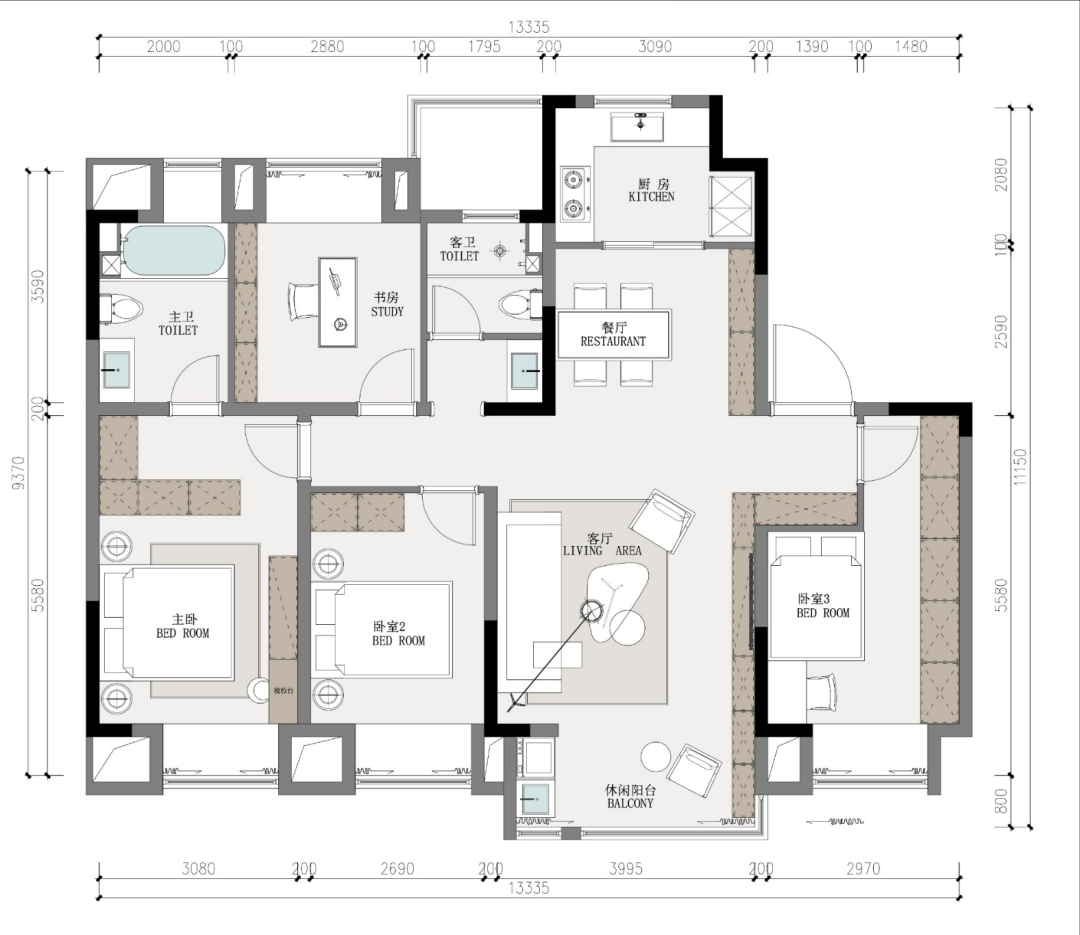
  面 积 | 130㎡

  平面分析

  ● 原始平面 ●

  户型 :四室两厅两卫

  优点:

  1、标配4房2卫,满足更多功能需求,可预留空间足够;

  2、南北飘窗较多,拉长空间延伸感;

  缺点:

  1、单个房间空间局促;

  2、全屋收纳空间较少。

  ● 平面方案 Ⅰ ●

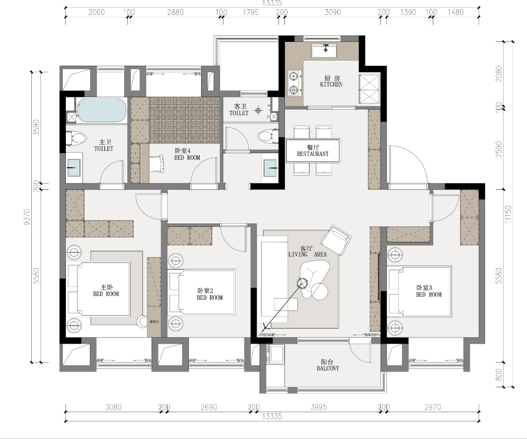
  人物定位:四口之家,一个男孩,一个女孩,需要预留客房

  设计思路:基本不更改硬装结构,在保留四个房间的前提下,增加各个空间的收纳空间。北房间用来做多功能房间,以收纳和办公学习为主,保留居住的功能。

  ● 平面方案 Ⅱ ●

  人物定位:三口之家,青少年,偶尔老人过来居住。

  设计思路:阳台打通,打造多功能阳台。增加门厅换鞋柜和餐厅餐边柜的储物功能,保留独立书房。卧室3增加储物空间。

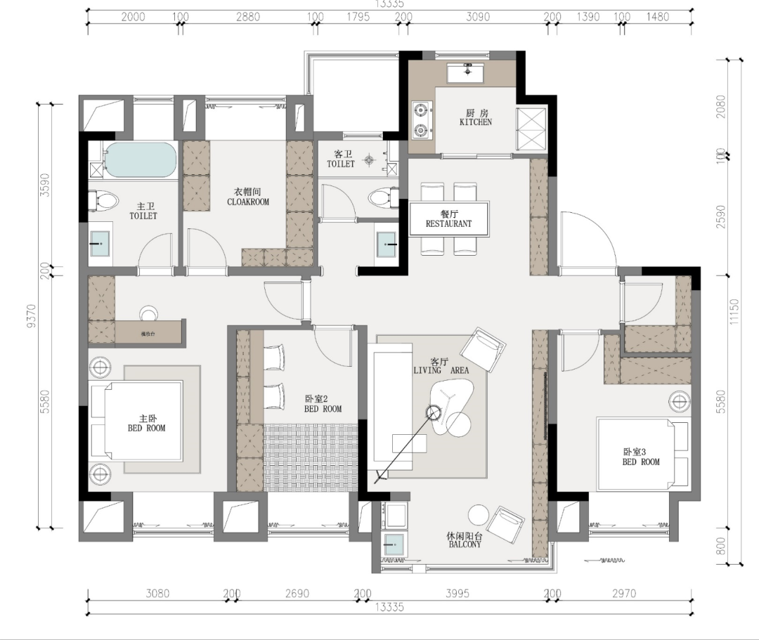
  ● 平面方案Ⅲ ●

  人物定位:三口之家,孩子要在自己房间写作业,偶尔老人过来居住

  设计思路:客厅整体打通,视觉上空间增大,增加活动范围,更好的培养亲子感情,北面一个房间改成衣帽间,增加储物空间。

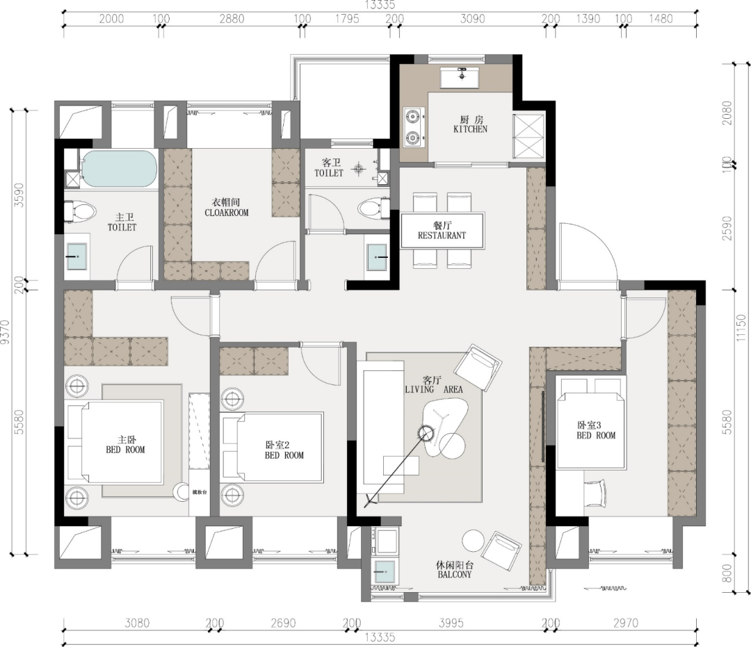
  ● 平面方案Ⅳ ●

  人物定位:三口之家,孩子要在自己房间写作业,偶尔老人过来居住

  设计思路:门厅增加独立入户鞋帽区,客厅整体打通,视觉上空间增大,增加活动范围,更好的培养亲子感情,把北边一个房间划分到主卧区域,让主卧成一个大套间。

  软装意向分析

  ● 玄关 ●

  对于无玄关的户型,入户门左右侧有较长的靠墙区域,且安置鞋柜后不会阻碍空间的利用,那么可以将鞋柜平行布局在门体的一侧。柜子与门体位于同一方向,进门后的空间感依旧保持宽松舒适,又能实现较大面积的储物收纳空间,狭小的转角区域亦可以得到合理利用。

  ● 客餐厅 ●

  ● 主卧 ●

  ●次卧 ●

  ● 衣帽间●



服务热线:010 — 85376870
手机号码:15910876795
电子邮箱:liangdiandesign@163.com
公司地址:北京市朝阳区新管庄科技园二期5号楼101

联系我们