有很多业主在找我们设计前,因为已有的功能划分不能满足项目的使用要求,便想着改变屋子的结构,因此拆墙也是在所难免的。
拆墙时要注重区分承重墙和非承重墙,那什么是承重墙呢?承重墙和非承重墙怎么区别呢?这也是为什么好多业主选择找设计师来设计平面功能,毕竟专业说明一切。
今天带您一起来了解下承重墙与非承重墙。

什么是承重墙?
承重墙是作为支撑建筑主体的一种墙体,它需承担着上面楼层的重量。通常在平面图上会用黑色的粗线来代表墙体。而非承重墙是指不支撑着上部楼层重量的墙体,只起到把一个房间和另一个房间隔开的作用,在工程图上为中空墙体,有没有这堵墙对建筑结构没什么大的影响。

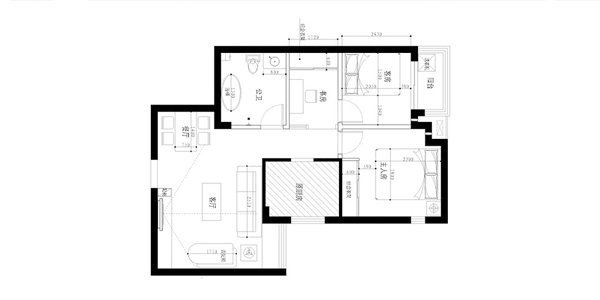
▲黑色填充墙体为承重墙
在我们设计的项目如样板间设计、餐饮设计的施工图中粗实的线指的也是它,像砖混结构的屋子墙一般就是承重墙,而非承重墙都是以细的实线来表示或者用虚线来表示。
一般地讲,砖混结构的房屋墙体都是承重墙;框架结构的房屋内部的墙体一般都不是承重墙。当然具体到房屋结构本身,判断墙是否是承重墙,应仔细研究原建筑图纸并到现场实际勘察后才能确定。

承重墙和非承重墙怎么区别
我们通常情况下可以根据声音来做出判断,可以用一些坚硬的物品来轻轻敲墙,如果发出的声音清脆,并且有很大回声的话,就不是承重墙。相反,如果声音比较低沉、沉闷的话就是承重墙。还有外墙通常都是承重墙,和邻居共用的墙也是。一般的非承重墙在卫生间、储藏间、厨房及过道。
我们还可以从它的厚度来判断。承重墙一般都比较厚,厚度一般在240mm左右,寒冷地区外墙结构厚度为370mm左右。

一般标准砖的墙是承重墙,加气砖的是非承重墙。
墙与梁间紧密结合的是承重墙;采用的斜排砖的方法的是非承重墙。
