无论什么类型、什么档次的餐厅,都需要空间规划和布局。是餐饮空间设计的首要工作,主要解决餐饮空间中不同功能空间的划分和组织。用餐空间的设计一方面要满足客人用餐、等候、交流的需求,另一方面要实现餐厅工作人员的服务功能。
从使用功能来看,用餐空间包括主用餐空间、单人用餐空间、柜台空间、垂直交通空间、卫生间和厨房空间等。考虑到各功能空间面积在整个餐饮空间面积中的比重不同,需要仔细分析设计场地的实际情况,结合餐厅设计的基本原则,进行合理、有序、高效的空间规划布局。
我们将餐饮空间的规划布局分为2个步奏:平面布局的构建以及包间的布局。下面分别对这2个方面进行说明。
1、平面形式的构建
餐饮空间设计是一个从平面到空间的思维过程,平面形态的确立是整体空间塑造的基础。布局需要遵循一定的规则,布局的实用性一定要充分考虑。在平面组织过程中,入口区的设计需要注意视线与空间视线的关系。主图像显示界面可以单独设置,也可以与接待台集成。主用餐空间宜布置在餐厅相对宽敞的中心区域,而单体用餐空间宜布置在靠近窗户或墙壁的区域。卫生间的设计既要考虑立面的隐蔽性,也要考虑客人的方便性,不能远离用餐区,这样会拉长使用者的移动距离。通道设计也是平面布局中的重要内容,是各功能区之间的纽带。主通道宽度为1200~1500mm,辅通道宽度为600~900mm。设计时还要注意,客户通道和员工通道之间不能有过多的交集,要设置专门为员工服务的通道。

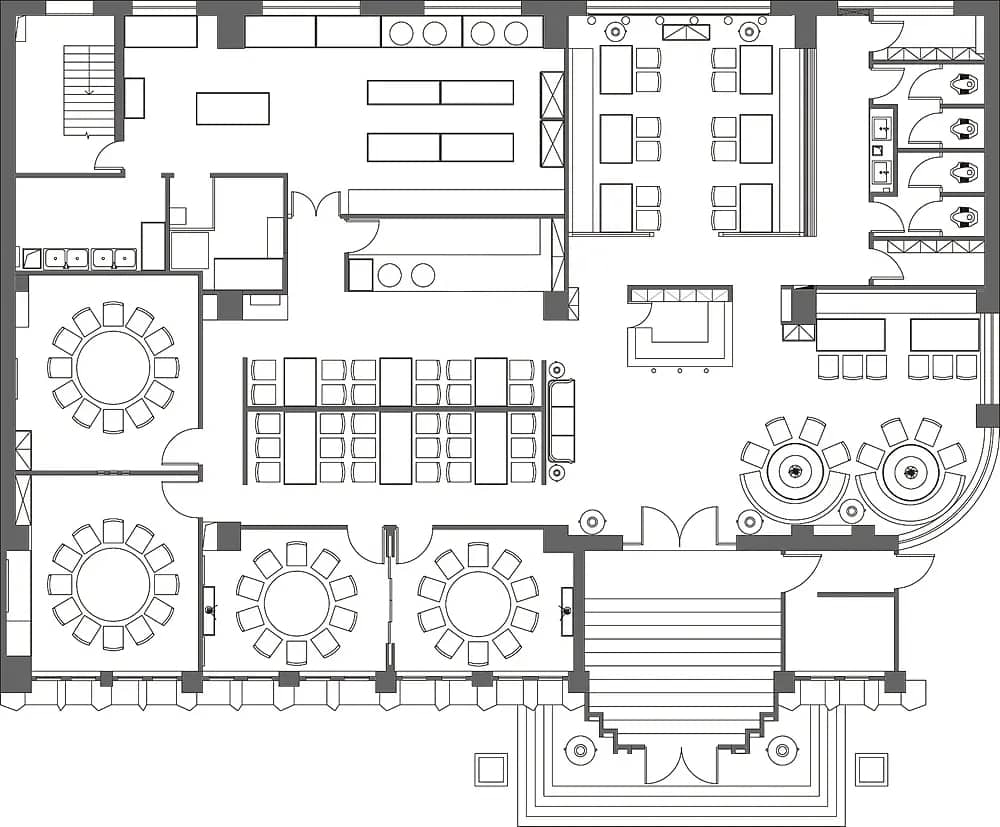
某餐厅平面布局图
2、包间的布局
包间的布置需要注意集中,通常会与分散的座位区分开,保证一定的私密性。包间的类型取决于空间的具体情况。有大包或豪华包间的餐厅,要利用好餐厅的优势区域,营造良好的用餐氛围。一个配餐间可以设置在一个大的包间里。注意配餐间的入口要与包间的正门分开,配餐间的出口不要与餐桌相对。在交通组织上,服务通道和客人通道需要分开设置,不应有交叉。由于中型包间和小型包间的空间限制,设置相应的餐桌就可以满足必要的使用需求。

某餐厅包间布局图纸
Tags:规划布局 餐饮空间设计 餐厅设计