中式设计总会带着幽幽的意境之美,泛着淡淡的柔和之光;恬然自适的东方美学。

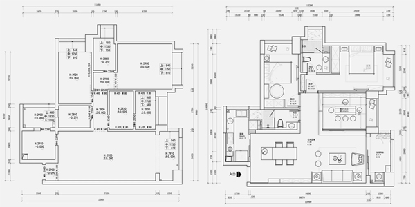
本案是中式平层家装设计,原始结构户型痛点:餐厅厨房区域过小,使用起来非常拥挤;主卫空间紧凑,规划不合理。
平面规划后,以招待空间的规划作为主轴,把原有结构打通作长条型厨房,餐厅空间加大,增加水吧台的设计,创造出了近4米宽的用餐区域;

以客厅及茶室区为朋友与家人间交流接待为主要概念,把原有与客厅相连的空间打通,以屏风相连,小阳台扩出,设计成抬高式榻榻米茶室,座椅底下则做暗藏收纳柜,使空间利用率***大化。
让客厅与餐厅,茶室设计整体回游串联,优化动线。

客厅与茶室相衔区域屏风的设计,实现了虚与实的结合,使两个空间互相独立又互相接连,从中式设计美学和功能的角度释放空间潜力,探索空间的界限,打造耐人寻味的氛围写照。

整屋的软装设计选用原木色家具,返璞归真。或淡雅亦温润,摈弃传统中式装修的沉重感,注入一股悠然清流。
全屋的中式装修采用3000K射灯,充盈着温暖白日光色温的家居,避免直射亮光眩晕。餐厅蕴含山水意境的吊灯,点缀间域,增添诗意。

位于餐厅区域的中岛水吧台,不仅作为一种生活的情调,更增添了生活的便利性。镂空吧台设计,兼顾家人日常饮水及日用品储纳空间作用。

与客厅电视背景墙相连的多功能榻榻米茶室区,约上三五知己,每每品茶会客,谈阔风生,不失清雅。座椅底下特别配置了按压弹簧式暗藏储物柜,弥补家中储存杂物功能的不足。

茶室左侧高柜下设计内嵌LED壁炉,热烈的火焰在摇摆在燃烧,暖意盎然,营造温馨氛围感。坐酌泠泠水,看煎瑟瑟尘。无由持一碗,寄与爱茶人。


主卧套房方面,考虑到卧室区域较大,在保留原有舒适的尺寸下,把主卫空间扩大,干湿分离,预留化妆区,使用感受更佳。